Hybrid Test Stand Cold Flow test using liquid CO2

Hybrid Test Stand Cold Flow test using liquid CO2

The Hybrid Rocket Test Stand was one of my main projects as Hybrid Propulsion lead of the Cornell Rocketry team. I was responsible for bringing the test stand from clean sheet to cold-flow testing in one semester.

Project Overview:
The purpose of this test stand is to allow the propulsion team to test all aspects of hybrid engine design under a controlled environment while collecting data on key variables, such as thrust, fluid system pressure, and oxidizer mass flow rate. The hybrid test stand will allow the Cornell Rocketry Team to test hybrid rocket engines producing up to 1000 lbf of thrust.

The test stand features Marotta PLV-34 and MV-524 solenoid valves, semi-active tank pressurization, a servo valve, and a nitrogen purge system.

Key Action Items:

  • Lead creation of hybrid propulsion test stand from preliminary design to successful cold flow testing in one semester
  • Designed fluid system and created piping and instrumentation diagram (P&ID) for hybrid propulsion test stand
  • Presented fluid system design reviews to Cornell aerospace industry alumni and Marotta Controls' aerospace division
  • Guided team members in the creation of shop drawings and assisted in machining their components
  • Verified N2O flow rates and purge/pressurization performance using thermodynamics and fluid dynamics calculations
  • Guided members in designing modular N2O oxidizer injector, mechanically actuated valve, and oxidizer vent system

Skills: Project management, Bridgeport Mill machining, Solidworks CAD assemblies and components, drawings, pressure vessel design, fluid system design, creating propulsion testing procedures, MATLAB

CAD Design & Documentation

Hybrid Test Stand SOLIDWORKS CAD

Hybrid Test Stand SOLIDWORKS CAD

I designed the architecture of the test stand and created the Solidworks assembly

Hybrid Fluid System P&ID

Hybrid Fluid System P&ID

Test Stand Top View

Test Stand Top View

Test Stand Assembly Supercharge

Test Stand Assembly Supercharge

SRAD Hybrid Test Stand Run Tank

The run tank is an aluminum 6061 pressure vessel that contains the oxidizer, liquid N2O.

I was responsible for designing, coordinating the manufacturing of, and conducting testing on the run tank.

This greatly shortened lead times and saved the team over $3000 by avoiding outsourcing costs.

Run Tank Solidworks Model

Run Tank Solidworks Model

Hydrostatically Testing Run Tank to 1500 PSI

Hydrostatically Testing Run Tank to 1500 PSI

Design Documentation:

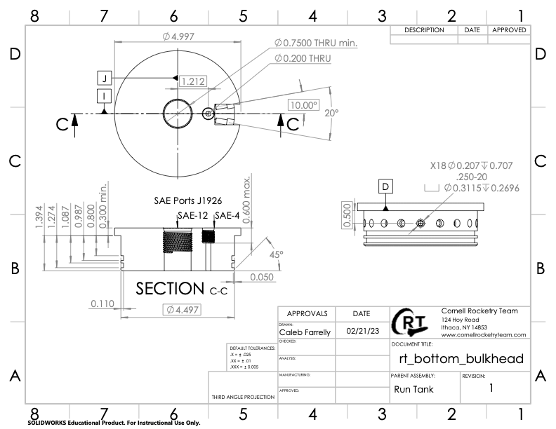
Bottom Bulkhead Drawing

Run Tank Bottom Bulkhead Drawing

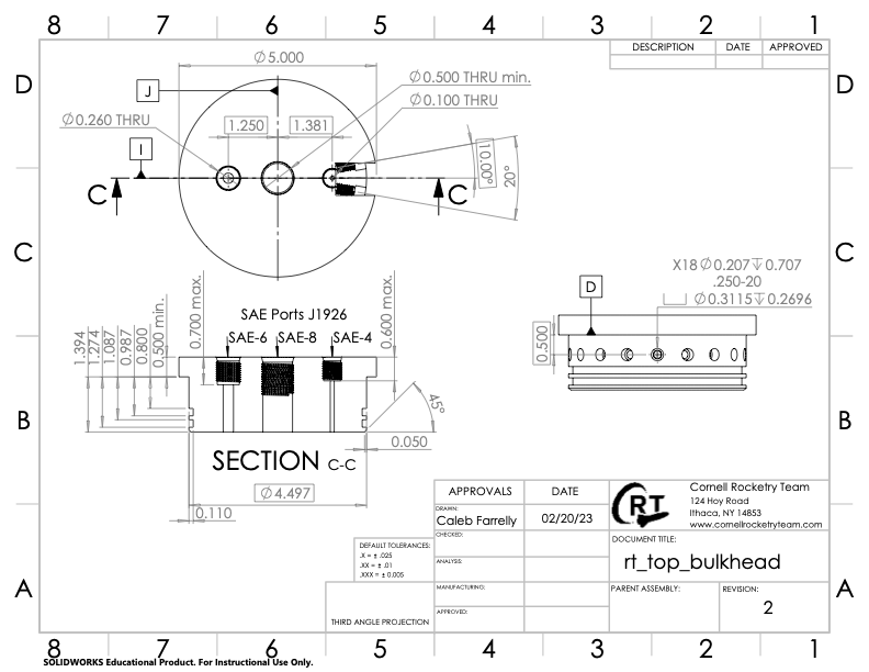
Top Bulkhead Drawing

Run Tank Top Bulkhead Drawing

Casing Drawing

Run Tank Casing Drawing

Cold Flow Testing

Fill System Indicated

Liquid CO2 sprays from dip tube indicating that run tank is at maximum capacity

Technical Report

2023 Hybrid Test Stand Technical Report

2023 Hybrid Test Stand Technical Report